팬코일유니트
직립형
대한민국 공조 기술을 세계에 알리고, 지속 가능한 혁신으로 글로벌 경쟁력을 갖춘 기업으로 성장하겠습니다.


4접점 터치식 마이콤 스위치를 사용하여 풍량 선택이 자유롭고 실내온도를 자동으로 유지할 수 있어 경제적인 냉·난방을 할 수 있습니다.
단 3상 제품(SFC-150S 이상)은 속도 조절이 되지 않습니다.
무선리모컨을 사용할 수 있습니다.
단 단상 220VAC 60Hz 제품에 한함
일반 FCU로 냉·난방이 곤란한 체육관, 교회, 성당, 식당 등 넓은 공간에 적합합니다.
RS-485통신을 이용하여 중앙제어를 할 수 있습니다.Option

| No. | DESCRIPTION | MAT'L | Q'TY | REMARK |
|---|---|---|---|---|
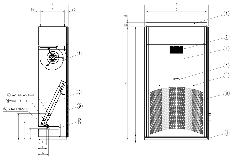
| 1 | AIR OUT GRILLE | AL | - | 분체도장 |
| 2 | CONTROL SWITH | - | 1 | 1ø220V 60Hz, 디지털 터치식 |
| 3 | CASING | COLOR | 1 | 칼라철판 |
| 4 | NAME PLATE | - | 1 | - |
| 5 | SCREW BLOT | - | 2 | Ø8 *38 |
| 6 | SUCTION GRILL | COLOR | 1 | 칼라철판 |
| 7 | FAN & MOTOR | ASS'Y | 1 | SIROCCO FAN/ Ø1 220V 60Hz |
| 8 | HEAT & COOLING COIL | CU-AL | 1 | SLIT FIN |
| 9 | AIR FILTER | 염화비닐 | 1 | 수세식 |
| 10 | DRAIN PAN | GI | 1 | 분체도장 |
| 11 | BASE | GI | 1 | 분체도장 |

| No. | DESCRIPTION | MAT'L | Q'TY | REMARK |
|---|---|---|---|---|
| 1 | AIR OUT GRILLE | AL | - | 분체도장 |
| 2 | CONTROL SWITH | - | 1 | 1ø220V 60Hz, 디지털 터치식 |
| 3 | CASING | COLOR | 1 | 칼라철판 |
| 4 | NAME PLATE | - | 1 | - |
| 5 | SCREW BLOT | - | 2 | Ø8 *38 |
| 6 | SUCTION GRILL | COLOR | 1 | 칼라철판 |
| 7 | FAN & MOTOR | ASS'Y | 1 | SIROCCO FAN/ Ø1 220V 60Hz |
| 8 | HEAT & COOLING COIL | CU-AL | 1 | SLIT FIN |
| 9 | AIR FILTER | 염화비닐 | 1 | 수세식 |
| 10 | DRAIN PAN | GI | 1 | 분체도장 |
| 11 | BASE | GI | 1 | 분체도장 |
| 모델 | A | B | C | D | E | F | H | I(IN) | I' | J | J'(OUT) | K | K'(드레인) | L | M | N | O | P |
|---|---|---|---|---|---|---|---|---|---|---|---|---|---|---|---|---|---|---|
| SFC-20S(SD) | 600 | 530 | 410 | 265 | 1752 | 50 | 1802 | 99 | 293 | 132 | 452 | 129 | 151 | 20 | 20 | 20 | 500 | 300 |
| SFC-30S(SD) | 650 | 580 | 480 | 290 | 1842 | 50 | 1892 | 76 | 341 | 164 | 427 | 130 | 341 | 25 | 25 | 25 | 550 | 360 |
| SFC-50S(SD) | 650 | 580 | 480 | 290 | 1842 | 50 | 1892 | 76 | 341 | 164 | 427 | 130 | 341 | 32 | 32 | 25 | 550 | 360 |
| SFC-75S(SD) | 1070 | 1000 | 510 | 290 | 1842 | 50 | 1892 | 146 | 318 | 156 | 441 | 180 | 318 | 40 | 40 | 25 | 1020 | 400 |
| SFC-100S(SD) | 1070 | 1000 | 510 | 290 | 1842 | 50 | 1892 | 146 | 318 | 156 | 441 | 180 | 318 | 40 | 40 | 25 | 1020 | 400 |
| SFC-150S(SD) | 1660 | 1590 | 750 | 450 | 1600 | 70 | 2120 | 291 | 229 | 189 | 1081 | 479 | 165 | 50 | 50 | 25 | 1550 | 574 |
| SFC-200(SD) | 1660 | 1590 | 750 | 450 | 1600 | 70 | 2120 | 291 | 229 | 189 | 1081 | 479 | 165 | 50 | 50 | 25 | 1550 | 574 |
| SFC-250S(SD) | 1660 | 1590 | 750 | 450 | 1600 | 70 | 2120 | 313 | 252 | 174 | 1093 | 491 | 157 | 50 | 50 | 25 | 1550 | 574 |
| 구분 | 규격 | SFC-20S(SD) | SFC-30S(SD) | SFC-50S(SD) | SFC-75S(SD) | SFC-100S(SD) | SFC-150S(SD) | SFC-200S(SD) | SFC-250S(SD) | |||||||||
|---|---|---|---|---|---|---|---|---|---|---|---|---|---|---|---|---|---|---|
| 능력 | 능력조건 | A | B | A | B | A | B | A | B | A | B | A | B | A | B | A | B | |
| 냉방능력 | W | 6,730 | 5,120 | 10,280 | 7,670 | 22,900 | 17,440 | 34,310 | 26,160 | 45,900 | 34,880 | 68,990 | 52,330 | 90,490 | 69,770 | 118,050 | 87,210 | |
| Kcal/h | 5,790 | 4,400 | 8,840 | 6,600 | 19,690 | 15,000 | 29,510 | 22,500 | 39,470 | 30,000 | 59,330 | 45,000 | 77,820 | 60,000 | 101,520 | 75,000 | ||
| 난방능력 | W | 9,170 | 8,260 | 13,840 | 12,280 | 28,310 | 25,700 | 62,290 | 38,370 | 82,160 | 50,350 | 125,380 | 76,740 | 157,780 | 97,670 | 196,670 | 118,610 | |
| Kcal/h | 7,890 | 7,100 | 11,900 | 10,560 | 24,350 | 22,100 | 53,570 | 33,000 | 70,660 | 43,300 | 107,830 | 66,000 | 135,690 | 84,000 | 169,140 | 102,000 | ||
| 유량 | ℓ/min | 19.4 | 15.0 | 29.5 | 21.5 | 65.7 | 50.0 | 98.4 | 75.0 | 131.6 | 100.0 | 197.8 | 150.0 | 259.5 | 200.0 | 338.5 | 200.0 | |
| 손실수두 | mAq | 0.4 | 0.3 | 0.2 | 0.1 | 1.2 | 0.7 | 1.4 | 0.8 | 2.8 | 1.6 | 2.1 | 1.2 | 4.3 | 2.5 | 9.9 | 3.5 | |
| 송풍기 | 형식 | 양흡입 다익형(SIROCCO FAN) | ||||||||||||||||
| 풍량 | ㎥/min | 20 | 30 | 42 | 60 | 88 | 130 | 180 | 200 | |||||||||
| 구동 | 모터직결구동 | |||||||||||||||||
| 수량 | EA | 1 | 1 | 1 | 2 | 2 | 2 | 2 | 2 | |||||||||
| 모터 | 형식 | AC반밀폐형(8극, B종 절연) | AC반밀폐형(6극, 8극, B종 절연) | |||||||||||||||
| 소비전력 | W | 290(290) | 410(460) | 590(790) | 750(840) | 1,080(1,450) | 2,640(2,640) | 3,960(3,960) | 3,300(6,600) | |||||||||
| 수량 | EA | 1 | 1 | 1 | 2 | 2 | 2 | 2 | 2 | |||||||||
| 열교환기 | 형식 | 일체형 Multi-Pass Cross Finned Tube(Slit Fin) | ||||||||||||||||
| 배관 | 입구 | A | 20 | 25 | 32 | 40 | 40 | 50 | 50 | 50 | ||||||||
| 출구 | A | 20 | 25 | 32 | 40 | 40 | 50 | 50 | 50 | |||||||||
| 드레인 | NIPPLE(25A) | |||||||||||||||||
| 외장 | 칼라철판, 분체소부도장 | |||||||||||||||||
| 풍량조절 | MICOM SWITCH(자동, 강, 중, 약) | MICOM SWITCH(풍량은 강만 있음) | ||||||||||||||||
| 전원 | 단상 220V 60HZ | Ø3 380V 60Hz | ||||||||||||||||
| AIR FILTER | 염화 비닐(수세식) | |||||||||||||||||
| 제품중량 | Kg | 55 | 60 | 80 | 110 | 130 | 180 | 200 | 260 | |||||||||
| * 주의사항 | 1. 능력조건 A : 냉방능력 : 실내공기 DB 27℃ WB 21℃ 입구수온 5℃ 난방능력 : 실내공기 18℃ 입구수온 80℃ 일때 2. 능력조건 B : 냉방능력 : 실내공기 DB 27℃ WB 19.5℃ 입구수온 7℃ 난방능력 : 실내공기 21℃ 입구수온 60℃ 일때 |
|||||||||||||||||