열회수형 환기유니트
환기유니트 | 대용량형
대한민국 공조 기술을 세계에 알리고, 지속 가능한 혁신으로 글로벌 경쟁력을 갖춘 기업으로 성장하겠습니다.


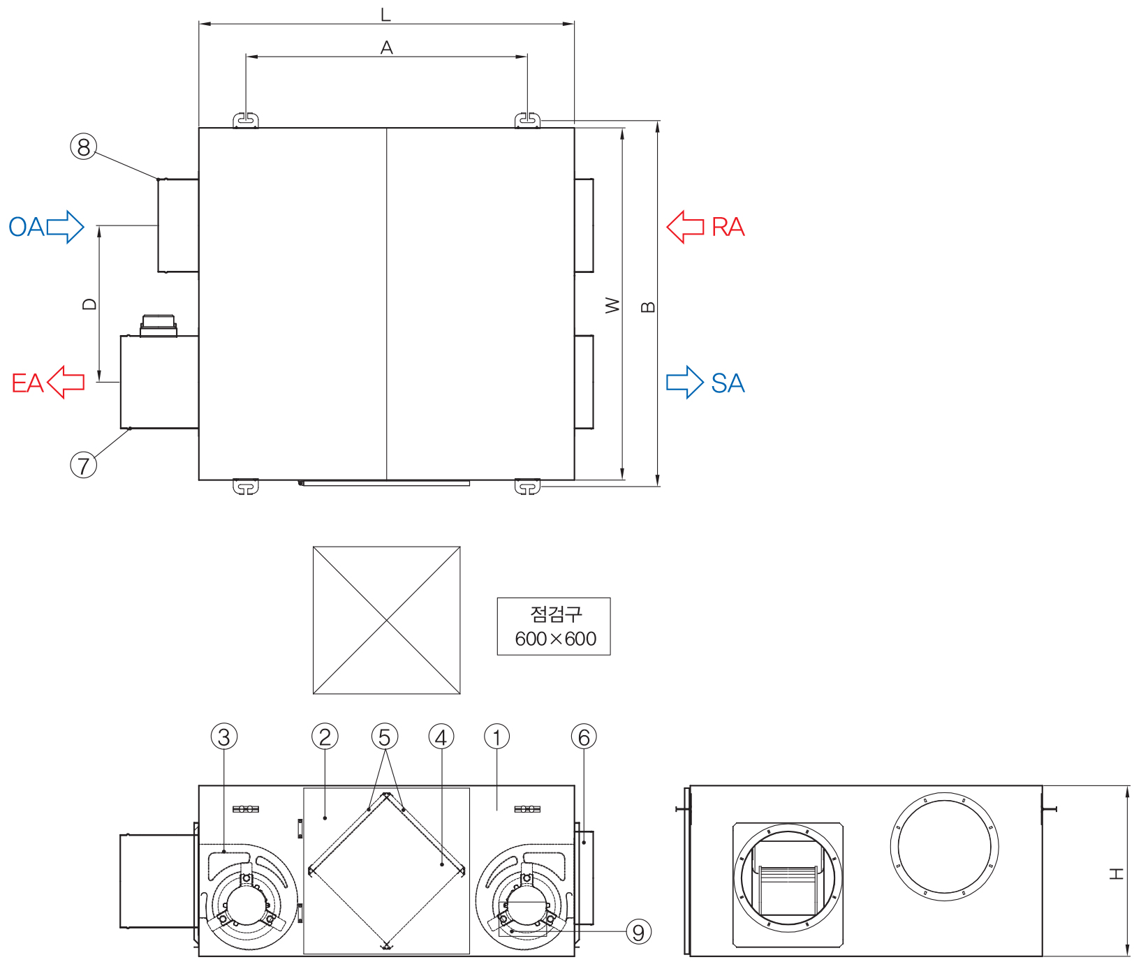
| No. | DESCRIPTION | MAT'L | Q'TY | REMARK |
|---|---|---|---|---|
| 1 | CASING | SGCC | 1 | - |
| 2 | ACCESS DOOR | SGCC | 1 | - |
| 3 | FAN & MOTOR | - | 2 | BLDC MOTOR |
| 4 | HEAT EXCHANGER | PULP | 1SET | 전열교환 특수가공 펄프 |
| 5 | PRE-FILTER | - | 2SET | 부직포 |
| 6 | DUCT FLANGE | - | 2 | F (SA, RA) |
| 7 | MD | - | 1 | F (EA) |
| 8 | BDD | - | 1 | F (OA) |
| 9 | CONTROL BOX | SGCC | 1 | PCB 포함 |
| MODEL | W | L | H | A | B | D | F |
|---|---|---|---|---|---|---|---|
| SW-1500SBa | 1,125 | 1,200 | 545 | 900 | 1,167 | 500 | Ø300 |
| SW-2000SBa | 1,500 | 1,400 | 545 | 900 | 1,542 | 700 | Ø350 |
| 구분 | 단위 | SW-1500SBa | SW-2000SBa | |||||||
|---|---|---|---|---|---|---|---|---|---|---|
| 풍량 | CMH | 특강 | 강 | 약 | 특강 | 강 | 약 | |||
| 1,500 | 1,500 | 1,125 | 2,000 | 2,000 | 1,750 | |||||
| 소비전력 | W | 1,050 | 696 | 530 | 1,150 | 927 | 910 | |||
| 정압 | mmAq | 15 | 12 | 15 | 12 | |||||
| 제품크기(W×L×H) | mm | 1,125×1,200×545 | 1,500×1,400×545 | |||||||
| 덕트 구경 | mm(Ø) | 300 | 350 | |||||||
| 소음* | dB | 60dB(A) 이하 | ||||||||
| 전원 | - | Ø1 / 220V / 60Hz | ||||||||
| 열 회수율 | % | 난방 시 70% 이상 | ||||||||
| 열교환기 | - | 사각 판형 전열교환기 | ||||||||
| 풍량조절방식 | - | ON/OFF, 3단 조절 | ||||||||
| 필터 | - | PRE FILTER | ||||||||
| 케이싱 | - | 아연도 강판, 칼라 강판(선택) | ||||||||
| 선택 사양 | - | MEDIUM FILTER, 항균, 탈취, 황화 구리, HEPA 필터, 광촉매 유닛 등 | ||||||||
| *소음 표시값은 현장에 설치 완료 및 마감 공사 완료된 시점 기준임. | ||||||||||