로고

신우공조(주)
나라장터쇼핑몰 EN admin
  • 제품안내
  • 열회수형 환기유니트
  • 환기유니트 | 표준형
  • 제품안내

    홈페이지를 방문해주셔서 감사합니다.

    열회수형 환기유니트
    환기유니트 | 표준형

    대한민국 공조 기술을 세계에 알리고, 지속 가능한 혁신으로 글로벌 경쟁력을 갖춘 기업으로 성장하겠습니다.

    • 환기유니트 | 표준형

      환기장치 대표 표준형 모델

    환기유니트 | 표준형

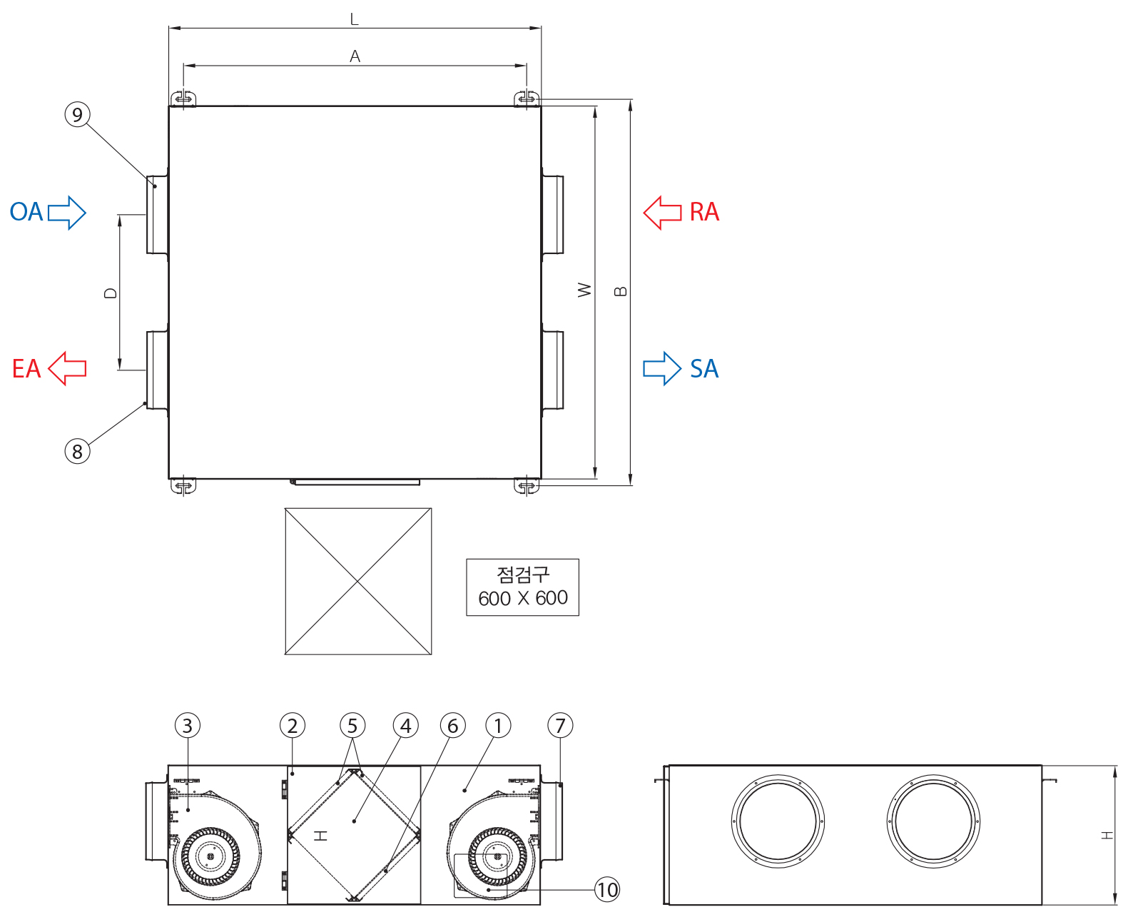
    • PART

      No. DESCRIPTION MAT'L Q'TY REMARK
      1 CASING SGCC 1 -
      2 ACCESS DOOR SGCC 1 -
      3 FAN & MOTOR - 2 BLDC MOTOR
      4 HEAT EXCHANGER PULP 1SET 전열교환 특수가공 펄프
      5 PRE-FILTER - 2SET 부직포
      6 MEDIUM FILTER - 1SET 합성섬유
      7 DUCT FLANGE ABS 2 F (SA, RA)
      8 MD ABS 1 F (EA)
      9 BDD ABS 1 F (OA)
      10 CONTROL BOX SGCC 1 PCB 포함

      DEMENSION

      MODEL W L H A B D F
      SW-500SHJ 745 900 430 758 787 387 Ø200
      SW-800SHJ 1,200 1,200 450 1,078 1,242 500 Ø250
      SW-1000SHJ 1,200 1,200 450 1,078 1,242 500 Ø250

    표준사양

    좌우 스크롤
    구분 단위 SW-500SHJ SW-800SHJ SW-1000SHJ
    풍량 CMH 특강 특강 특강
    500 500 400 800 800 700 1,000 1,000 800
    소비전력 W 240 191 180 420 248 214 500 413 375
    정압 mmAq 12 10 12 10 12 10
    제품크기(W×L×H) mm 745×900×430 1,200×1,200×450 1,200×1,200×450
    덕트 구경 mm(Ø) 200 250 250
    소음* dB 45dB(A) 이하 50dB(A) 이하 50dB(A) 이하
    전원 - Ø1 / 220V / 60Hz
    열 회수율 % 난방 : 78 / 냉방 : 69 난방 : 75 / 냉방 : 65 난방 : 75 / 냉방 : 62
    열교환기 - 사각 판형 전열교환기
    풍량조절방식 - ON/OFF, 3단 조절
    필터 - PRE FILTER, MEDIUM FILTER
    케이싱 - 아연도 강판, 칼라 강판(선택)
    선택 사양 - 향균, 탈취, HEPA FILTER 등
    * 소음 표시값은 현장에 설치 완료 및 마감 공사 완료된 시점 기준임.